Kindergarten D. José da Costa Nunes

Macau SAR of PRC

Page

1

 

Page 2


Overall location plan

Program:

Renovation of the existing building, enlargement with a new wing of classrooms and offices, Sports Ground, New Urban and Traffic concept and environmental impact.

Client:		Macau Government 
Date of Project:	June 1995 
Date of Completion:	September 1997 
Construction area:	7,000 m2
landscaping area:	4,000 m2
           
PROJECT TEAM 
 
Architecture:	Mário Duarte Duque 
 
Stability:		Jan Gin Vei 
 
E & M Installations:	Henrique Costa,
		SE - Engineering Services  
 
Fire Service:	Henrique Costa,
		SE - Engineering Services 
 
Sculptural Objects:	Patrícia Fonseca 
 
Contractor:	Cheong Kong 

Dialog between different Architectonic Substances, Plastic Concept and Urban Articulation

The most difficult requirement in this program was the resolution of the environmental interference of the new car flyover, its nearness and the shortage of ground for this requirement.

The space under the flyover between the new building and the old building was planned as a construction free breathing space which only vocation is to produce a landscaping set for the new building, old building, connecting glazed corridor, and to the urban space itself. For that the opposing building elevations became part of the set. For safety reasons there is no use of this space as playground.

 As a strategy for the dialogue between new and old construction it was proposed that the new construction should present the frame work for the existing Art Deco building, developing its own character rather expressing the extension or a concurrence to the existing building.

The new construction, on the surroundings of the existing building, display flat surfaces in simple and exact geometric relations, in a rather obvious ‘Neo Plastic’ way, that develop an abstract dialogue in a more neutral sense (though meant to be effective) of scale and language. Only in other parts of the compound the new architecture produces a more autonomous language of its own. The reason for that was also that the orientation to the old building is in the site more disturbing, in urban and environmental terms, to the functions held in the new building.

The shaping of a program for a kindergarten could not be indifferent to the possibility of supplying other plastic signs to the space rather than only the functional utility expected. In a kindergarten is where children first autonomous experiences in space take place and the surrounding architecture could provide the experience and development of a spacial lexicon in the same ludic way as most learning awareness takes place at this children age. In this way the space provides clearly identified relations of high/low, long/short, flat/curved, horizontal/inclined continuos/bent, bright/dark, warm/cold, filled/empty, interior/exterior, old/new, figurative object/ abstract shape, and colour, all as part of a three dimensional awareness of space and its vocabulary.

The playground is the place of the objects. The origami that children make at the scale of their hands (birds and dragons), are here reproduced in a living scale as part of the fun of the playground.

 

Edificio Novo:

A nova construção, constituída por 5 pisos, A ocupada pelas novas salas de actividade do Jardim de Infância nos pisos 0 e 1, num total de 12 em cerca de 1700 m2, e dispõe ainda de 2 pisos amplos, pisos 2 e 3, destinados aos Serviços Pedagógicos da Direcção de Serviços de Educação e Juventude, num total de cerca de 1560 m2. Existe ainda uma Área de Reserva em cave com cerca de 730 m2. A área global de construção útil é de cerca de 4000 m2.

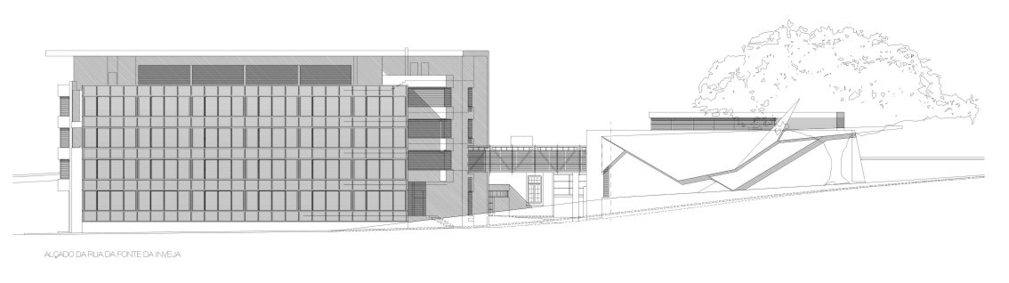
South Elevation of the new wing
North Elevation of the new wing
Long section through the New Wing
 

Page 2

Last updated: 28 Oct 2007

Home

Portfolio
Essays   Academic Archive
Résumé Multimedia
Under Construction In Project
© Copyright  2000 Note Generally Related Sites
Epilogue



 

Pátio da Sé, 22 r/c A, Macau SAR, People's Republic of China  Tel. (853) 28322449  Fax. (853) 28355258  E-mail: mdduq@mdduq.com

澳門大堂圍22 號地下A 中華人民共和國澳門特別行政區       電話:(853) 28322449      傳真: (853) 28355258       電子郵件: mdduq@mdduq.com

website statistics